Navigation überspringen
Projekte
Büro
Kontakt
Navigation überspringen
Bildung
Öffentliche Bauten
Wohnen
Stadtraum
Lehre
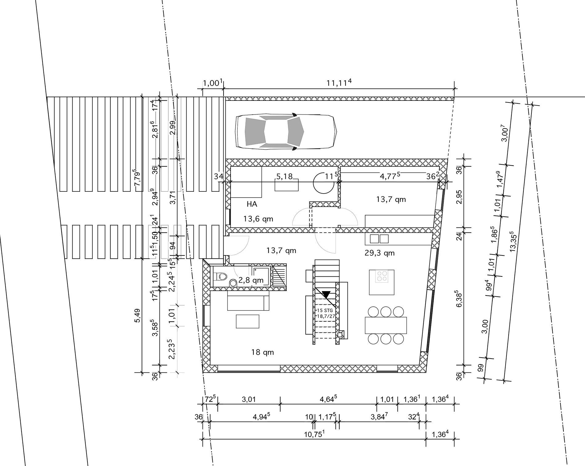
Wohnhaus in Köln Seeberg, 2005
_in Zusammenarbeit mit Stefan Nix-Pauleit
← Zurück