Wohnen im Stammhaus, Köln

Wohnen im Stammhaus, Köln, Fertigstellung 2021
Bauherr: Gemeinschaft Unser Platz im Leben e.V., Köln
Tragwerksplanung: Ing . Büro Hettlich, Köln
TGA: Ing Büro Deuter , Iserlohn
Freiraumplanung: Ingenieurbüro Rietmann, Königswinter
Bauleitung: Stefan Nix Pauleit Architekt Köln
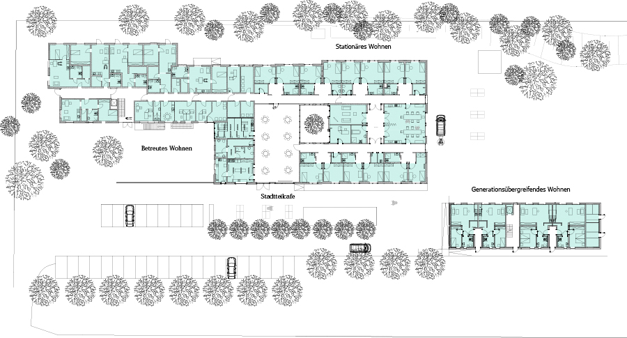
Das Angebot der Wohneinrichtung richtet sich vornehmlich an Menschen mit einer Körper- und/oder Mehrfachbehinderung sowie an Menschen anderer Zielgruppen, die an einem integrativen Mehrgenerationenwohnen interessiert sind. Es beruht auf einem modular aufgebauten Netz differenzierter Wohnformen und Hilfearrangements.
Die teilstationäre Wohneinrichtung besteht aus zwei Wohngruppen und sieht eine Mischstruktur aus Individual- und Gemeinschaftswohnraum in hausgemeinschaftsähnlicher Form vor.
Das betreute Wohnen ist in dem bislang für das stationäre Wohnen genutzten südlichen Gebäudeteil geplant. Es umfasst zehn abgeschlossene Wohneinheiten, sechs im Erdgeschoss und vier im Obergeschoss.
Das Angebot für generationenübergreifendes Wohnen wird als separates Wohngebäude komplett neu errichtet. Auch hier ist – wie beim Betreuten Wohnen – grundsätzlich ein Wohnen allein in eigener Wohnung oder zusammen mit einem Partner oder Angehörigen möglich.
In diesem Zusammenhang übernimmt das Stammhaus-Cafe als Begegnungsstätte, Nachbarschaftstreff und Kulturträger künftig eine zentrale Rolle in dem neuen Gesamtkonzept des Stammhauses..
Der Umbau ist mit Rücksicht auf den laufenden Betrieb des Stammhauses in mehreren Bauabschnitten vorgesehen.


