Betreutes Wohnen Solingen
Betreutes Wohnen Solingen
Bauherrin: Pro Mobil e.V. Velbert
Tragwerksplanung: ArchPlan Münster
TGA: Ing.Büro Deuter, Iserlohn
Ausführung: Holzbau Brüggemann Neuenkirchen
Fertigstellung 2016
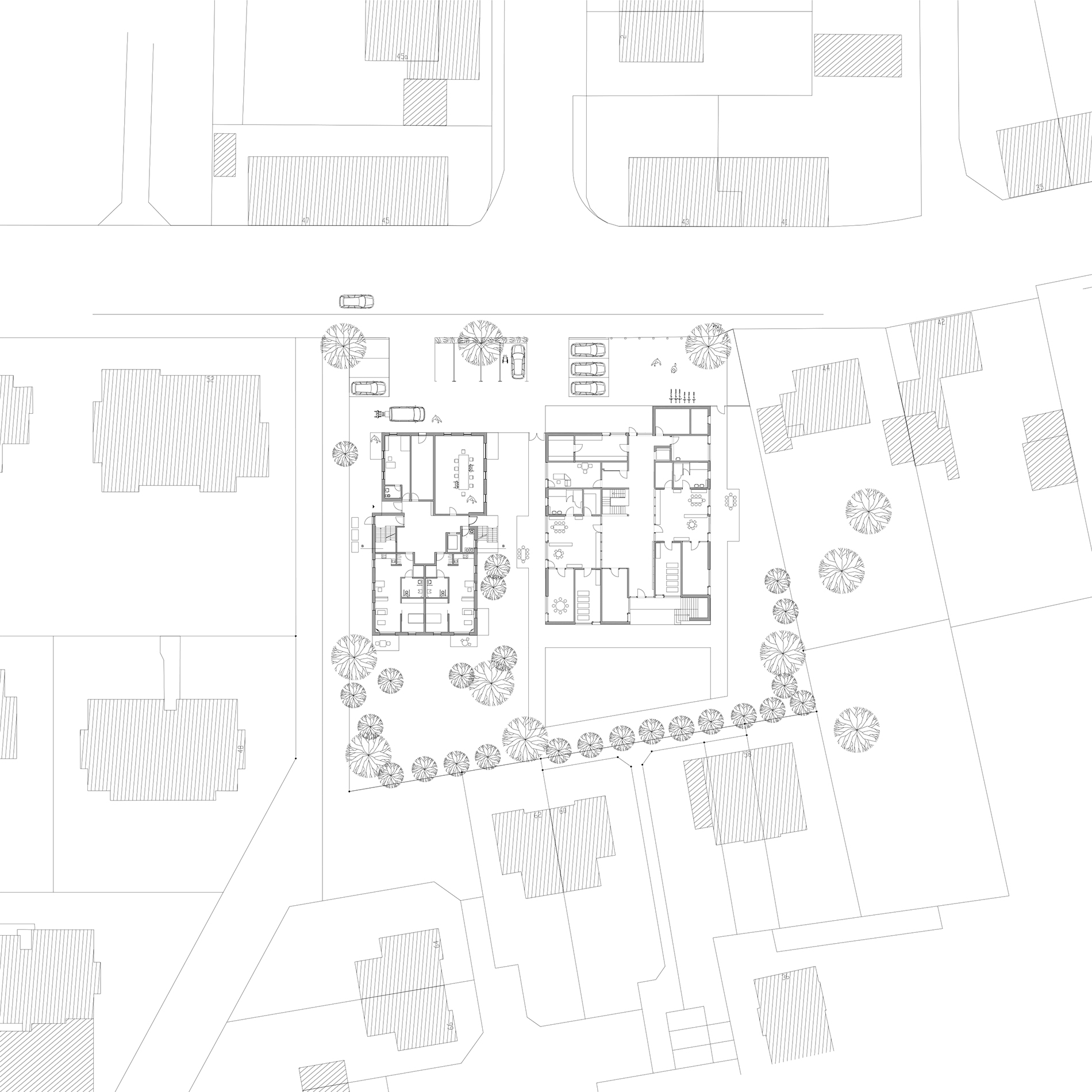
Das Wohnhaus für junge Menschen mit Behinderungen liegt in einem gewachsenen Wohnquartier in Solingen Wiefeldick und ist auf einem bislang unbebauten Brachland entstanden. Im Verbund mit einer inclusiven Kindertagesstätte als Nachbar, ist getragen durch den unabhängigen Verein Pro Mobil e.V ein inklusives barrierefreies Wohn- und Betreuungsangebot entstanden, dass den Stadtteil ideal ergänzt.Die Neubauten des 3-geschossigen Wohnhauses und der 2-geschossigen Kita bilden ein Ensemble, dem ein großzügiger öffentlicher Vorplatz vorgelagert ist. Über diesen sind beide Einrichtungen erschlossen und miteinander verknüpft.
Das Wohnhaus wird von Norden kommend über eine seitliche Zuwegung erschlossen.
Ein natürlich belichteter zentraler Flur bildet den kommunikativen Mittelpunkt eines jeden Geschosses und dient als Treffpunkt und für gemeinsame Aktionen. In zurückgesetzten Nischen können E-Rollstühle geparkt und aufgeladen werden.
In jedem Geschoss sind 4 Wohnungen à 62 qm angeordnet, im Erdgeschoss ist anstelle einer Wohnung ein großzügiger Gemeinschaftsbereich geschaffen worden, der gegebenenfalls zu einer Wohnung nachgerüstet werden kann. In der Nähe des Eingangsbereiches liegt das Betreuerzimmer mit Nebenraum. Jeder Wohnung ist ein Freibereich vorgelagert.
Die 3 oberirdischen Geschosse sind vollständig in Holztafelbauweise, lediglich das Treppenhaus und der Fahrstuhlschacht in Stahlbetonfertigbauweise errichtet. Die Betonwände sind größtenteils roh belassen, alle anderen Wände und Decken sind verkleidet, ein abgestimmtes Farbkonzept für die öffentlichen Räume ist durchgängig ablesbar. Die Holzbauweise spiegelt sich in der Fassade aus unbehandelter Douglasie wieder. Die in der ursprünglichen Planung abgehängten Balkone wurden aus Kostengründen freistehend ausgeführt.
