Wettbewerb Asamgebäude
Wettbewerb
Asamgebäude
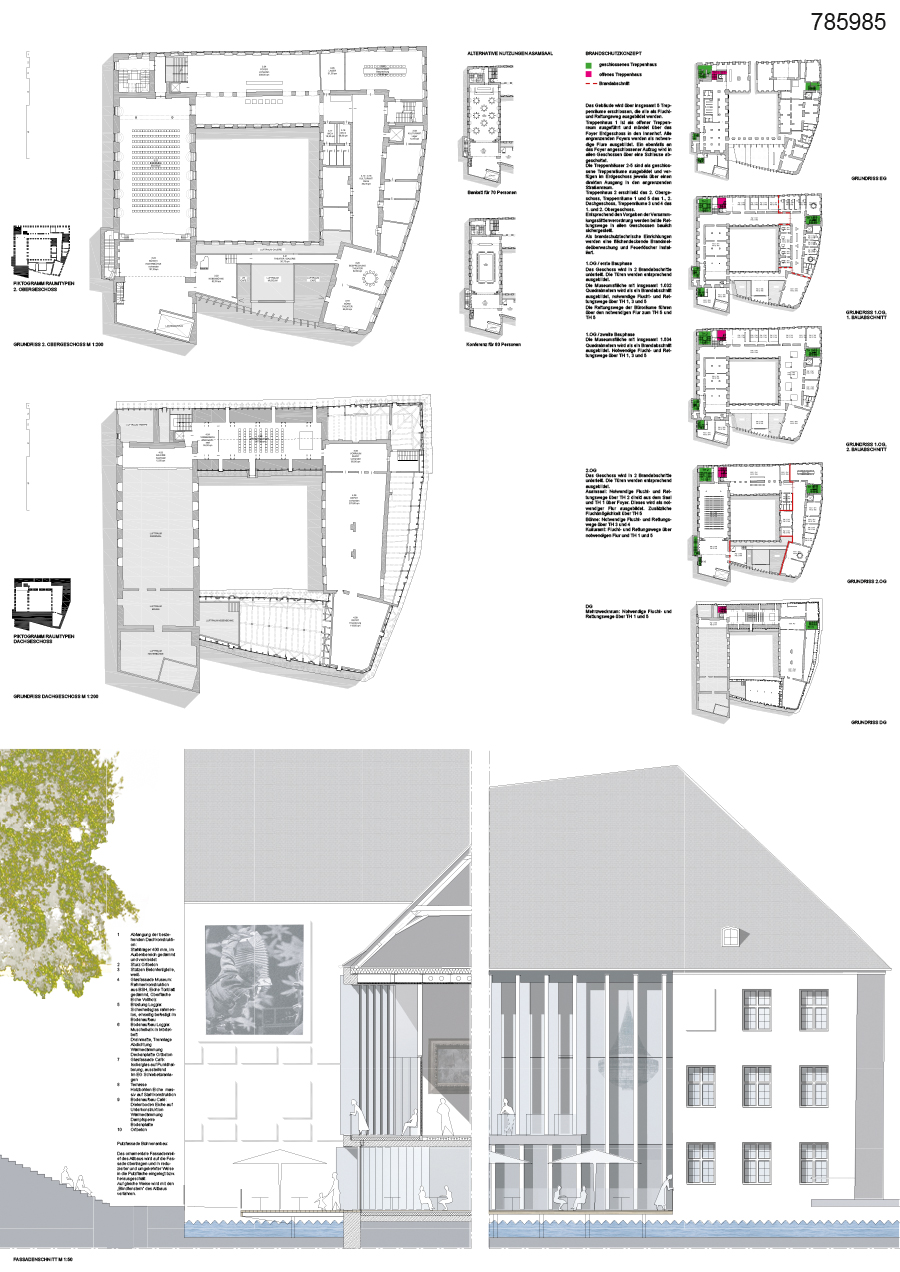
Die über Jahrhunderte hinweg gewachsene heterogene Gebäudestruktur des Asamgebäudes wird freigelegt und der Typus der Vierflügelanlage weiterentwickelt.
Ziel unserer Planung ist, vorgefundene Elemente wie Raumstrukturen, Gewölbedecken, Treppenhäuser, Holzfußböden und Fenster, zu einem stilistisch stimmigen Ganzen zusammen zu fügen. Lediglich der Südflügel wird zugunsten einer Durchlässigkeit transformiert, integriert sich in der Wahl der Materialien und Farbigkeit jedoch selbstverständlich in das Gebäude. Der Innenhof wird zum offenen Foyer für alle öffentlichen Nutzungen wie Asamsaal, Museum, Stadtinformation, Kulturamt und Handel. Ein ornamentaler Schmuckfußboden mit integrierten Sitzmöbeln unterstreicht die Eigenart des Raumes. Hier können auch kleinere open air Veranstaltungen stattfi nden. Die Eingänge zum Asamsaal, zum Museum und in die Stadtinformation sind so angeordnet, dass Synergien entstehen: Sie sind gemeinsam und auch getrennt nutzbar. Ein zentral angeordnete repräsentative neue Treppenanlage und ein 2. Aufzug erschließen Museum, Asamsaal und den neuen Mehrzweckraum, der wie eine geschlossene „Schatulle“ im Dachgeschoss des Nordflügels liegt.
Dem Südflügel, mit seiner besonderen Lage zwischen Innenhof und Aufgang zum Domberg, kommt eine Schlüsselstellung zu: Wir erhalten seine Kubatur, die Dachkonstruktion und die Hoffassade mit der erdgeschossigen Arkade, ersetzen jedoch die kleinteilige geschlossene Raumstruktur durch eine 3-geschossige Loggia, in die einzelne Volumen für Museum und Nebenbühne eingehängt sind. Besonders das Restaurant im Erdgeschoss und das Museum im 1. Obergeschoss profitieren von großzügigen Lufträumen und Sichtverbindungen über mehrere Geschosse hinweg.
Die neue Fassade nach Süden ermöglicht Sichtverbindungen zwischen Asamgebäude und Domberg. Gebäudehohe schlanke lamellenartige Stützen unterstreichen Leichtigkeit und Durchlässigkeit, die den neu gestalteten Südflügel charakterisieren.
Das Museum sollte nach Ende der Sanierung typologisch als in sich geschlossener Rundgang funktionieren. Die Neustrukturierung des Südflügels ermöglicht die Ausbildung eines 2-geschossigen Ausstellungssaales und eine Sichtbeziehung zum Domberg und seinen Bauten.
Fertigstellung: 2011
BAUHERR: Stammhaus Gemeinschaft unser Platz im Leben, Köln
ARCHITEKTUR: HEIERMANN ARCHITEKTEN, Köln
TECHNISCHE GEBÄUDEAUSRÜSTUNG: Ing Büro Deuter , Iserlohn
TRAGWERKSPLANUNG: Ing . Büro Hettlich, Köln
BAULEITUNG: Stefan Nix Pauleit Architekt Köln
AUSFÜHRUNG: im Bau
Team: Bernadette Heiermann, Severin Heiermann
