Wettbewerb Quartierstreffpunkt Döhnhoffstraße, Leverkusen
Wettbewerb 2018
Landschaftsarchitekten: Lill + Sparla, Köln
Idee
Die Entscheidung, einen Quartierstreffpunkt als vielfältig nutzbaren Ort in Leverkusen-Wiesdorf zu bauen, generiert großes architektonisches und städtebauliches Potential für das Quartier.
In der Konsequenz schlagen wir ein Bauwerk vor, welches die gesellschaftliche Relevanz der Aufgabe wieder spiegelt: urban, kompakt, offen, vielfältig, lebendig und einprägsam. Es bildet die Vielfalt der Bezüge und Synergien der Bespielung durch die unterschiedlichen Nutzergruppen, jedoch auch die spezifischen Belange der einzelnen Nutzer ab.
Die Identität stiftenden Bestandsbauten werden konzeptionell einbezogen und das neue Gebäude zum integrativen Bestandteil des Quartiers. Vielfältige Wege- Raum- und Blickbeziehungen im Inneren sowie im Außenbereich generieren einen anregenden zukunftsorientierten Lern- und Lebensraum.
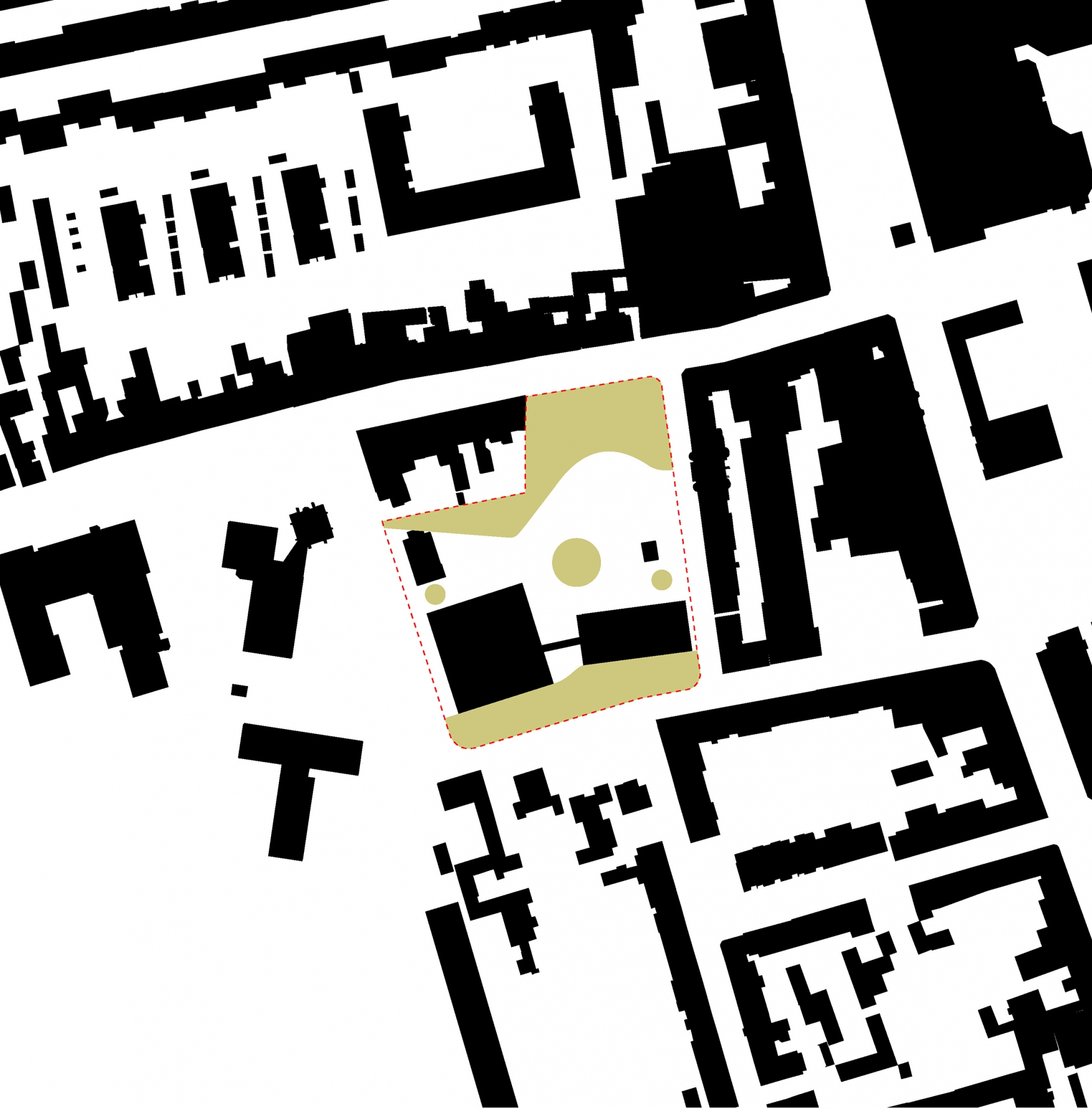
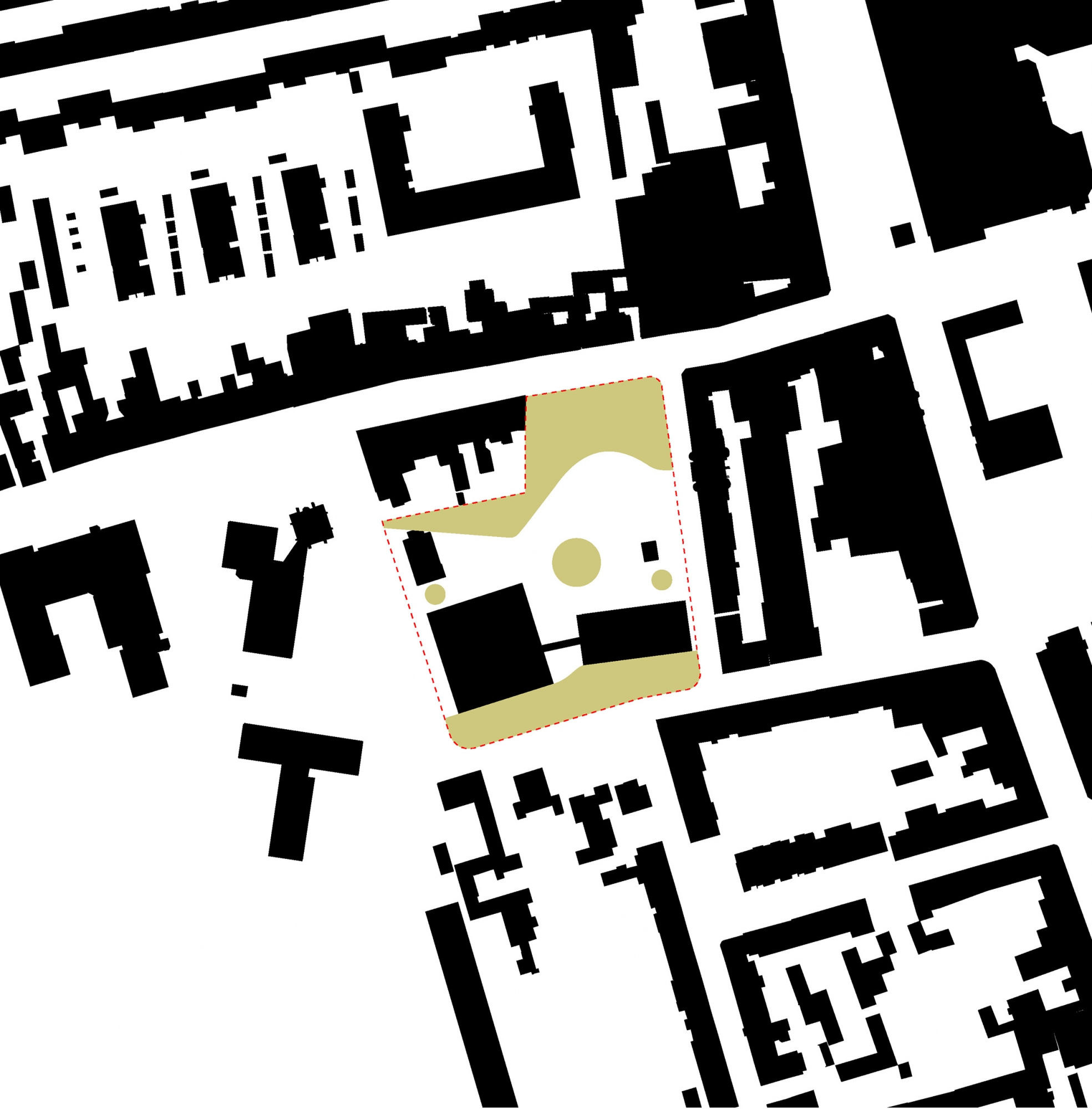
Städtebau
Mit dem Neubau der Mehrzweckhalle mit OGS und der Aktivierung der Alten Feuerwache entsteht ein Ensemble, welches im Zusammenspiel mit dem gemeinsamen Freibereich einen lebendigen, attraktiven Stadtbaustein bildet, der im Sinne einer Bildungslandschaft synergetisch zusammenfließt. In der Konsequenz wird das neue Gebäude ebenso wie die Bestandsgebäude, aus der Mitte, dem Schulhof erschlossen. Hauptanschlusspunkte sind Schulstraße und Moskauer Straße.
Das neue Gebäude reagiert mit einem kompakten Volumen auf die vorgefundene heterogene städtebauliche Situation. Es reagiert differenziert nach allen Seiten auf die jeweilige Lage im Grundstück bzw. Stadtraum. Die Fassade zur Moskauer Straße bildet mit ihren Dachsheds und Fensteröffnungen die besondere Charakteristik der Gymnastikhalle ab. Im Erdgeschoss erhalten die Umkleiden vor den Oberlichtern ein durchbrochenes Ziegelornament. Zur Dönhoffstraße zeigt sich die Mehrzweckhalle über eine großzügige Öffnung hinter der vorgelagerten Grünfläche. Der innen liegende Prallschutz im Erdgeschoss kann bei Bedarf zur Seite gefaltet werden und. Zum Schulhof orientiert liegt die Mensa und öffnet sich gleichermaßen zum Schulgebäude wie zur Alten Feuerwache. Der Raum zwischen Schulhaus ist den Schulkindern gewidmet. Sie können sich zwischen Schulhaus und Neubau sowohl auf Niveau des Schulhofes sowie im Obergeschoss trockenen Fußes zwischen den Gebäuden bewegen und Mensa und Pausentoiletten erreichen.
