Stadtarchiv Soest
Wettbewerb 2016
in Zusammenarbeit mit Fritzen + Müller-Giebeler Architekten BDA
Landschaftsplanung: brandenfels landscape + environment
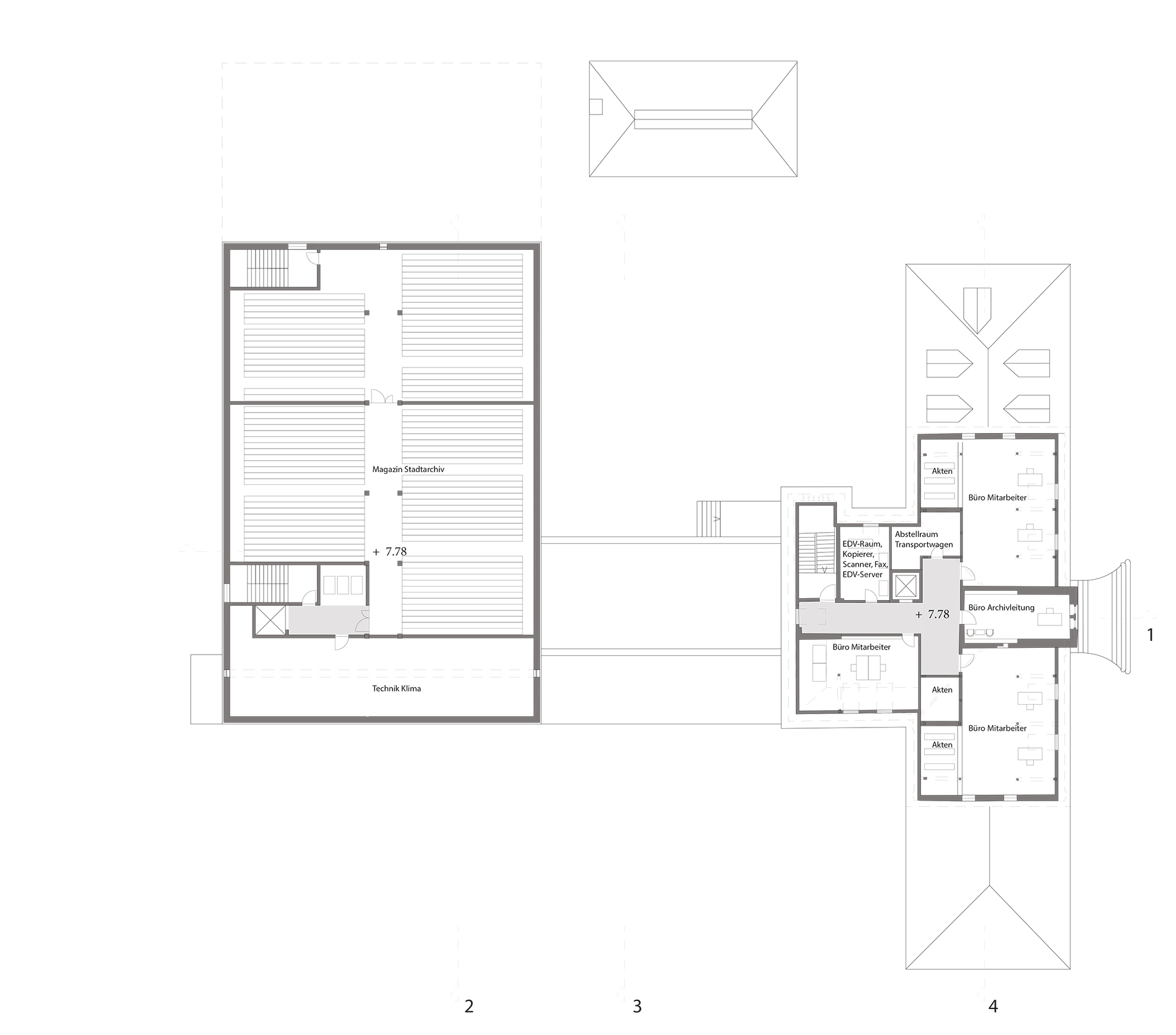
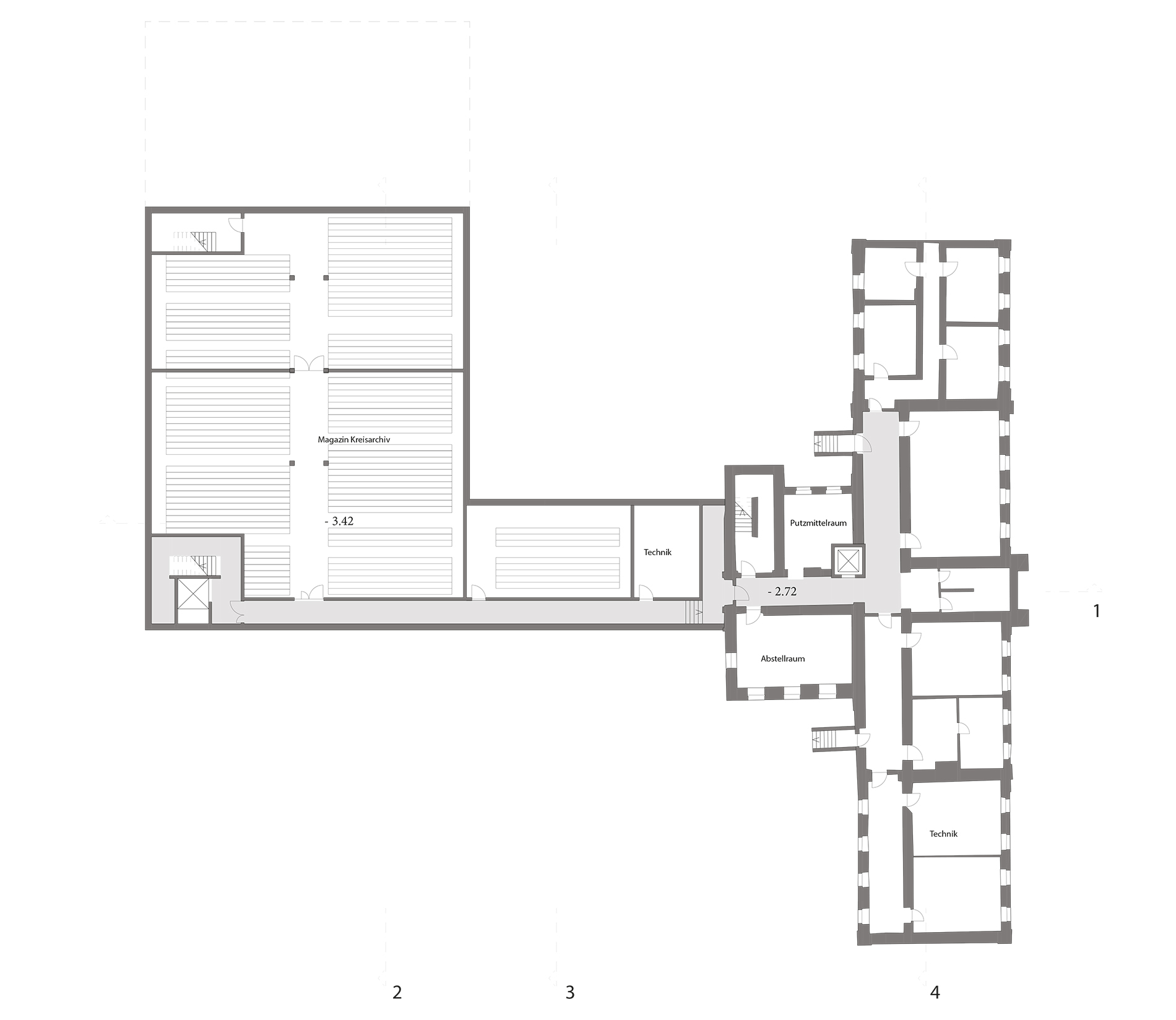
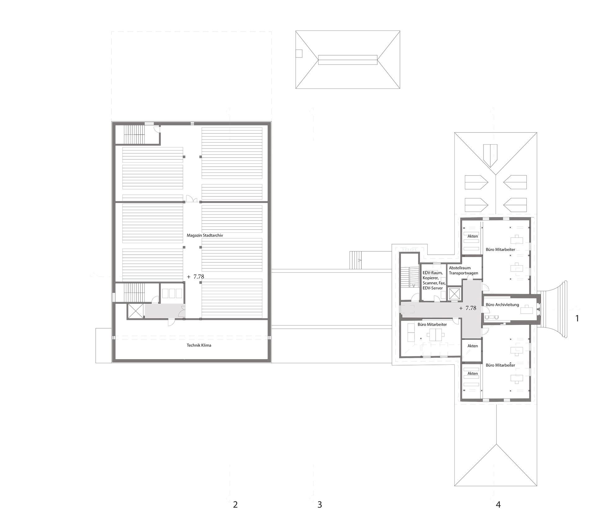
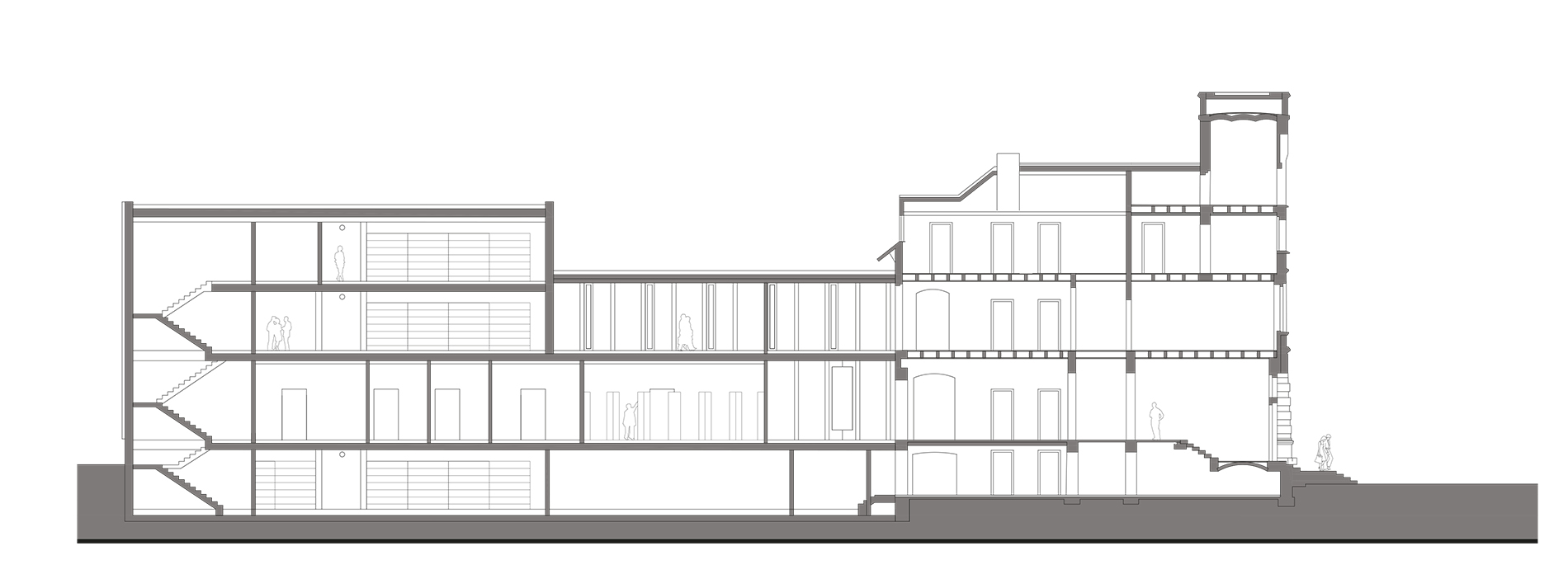
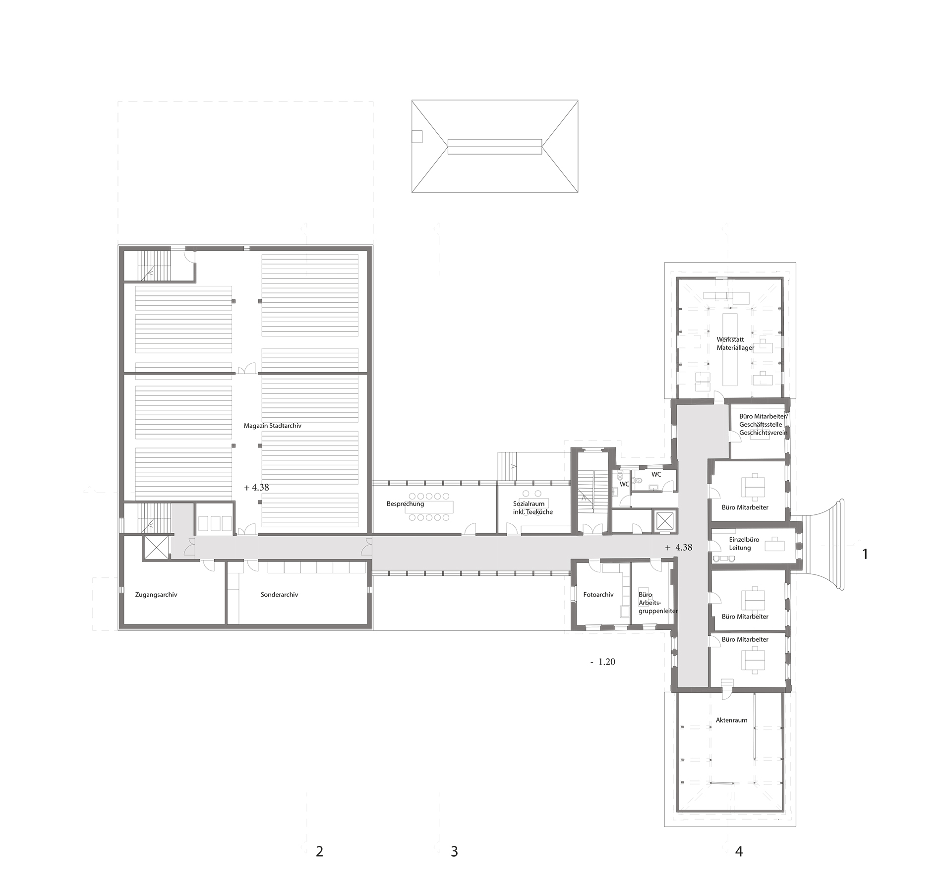
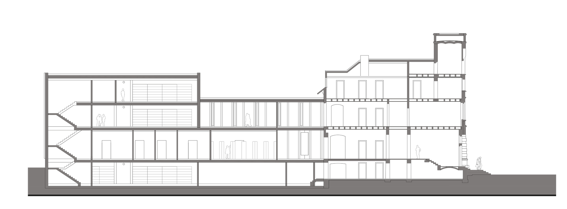
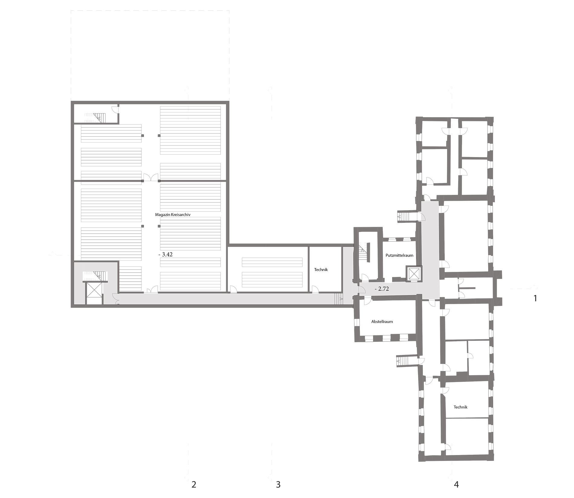
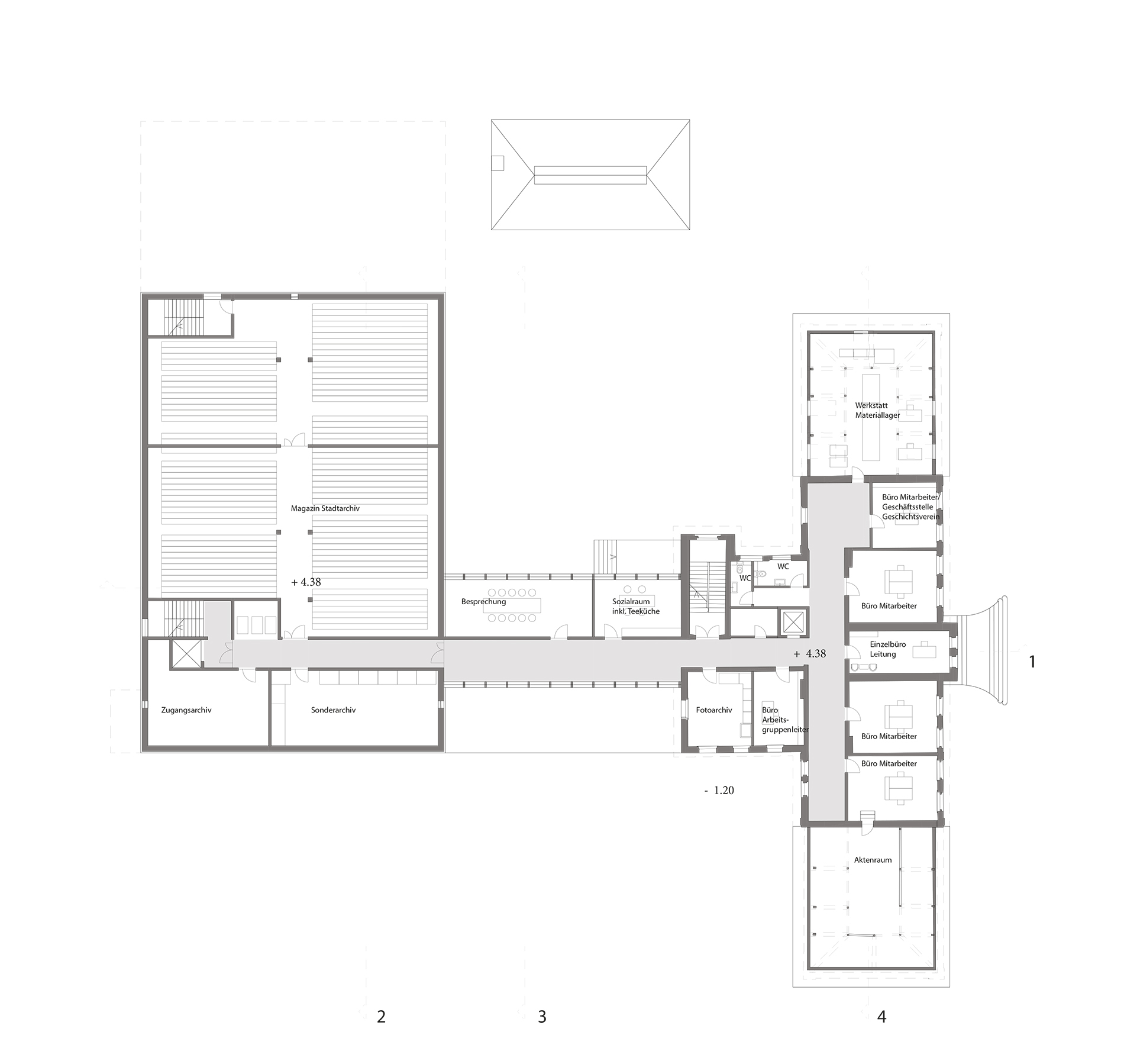
Das bestehende denkmalgeschützte Gebäude des zukünftigen Stadt- und Kreisarchivs wird um ein parkseitig positioniertes Magazingebäuude ergänzt, im Zusam-menspiel von Bestand und Neubau entsteht ein gefasster Innenhof, der von der vorhandenen eindrucksvollen Linde geprägt ist. Dieser Hof bietet Aufenthaltsqualitäten für die Mitarbeiter der Archive wie auch für die Besucher der Bibliotheken. Die zum Ensemble zugehörige Garage kann als Gartenhaus mit Potential für zusätzliche Nutzungen erhalten werden. Der Neubau ist in das 3-geschossige Magazingebäude, und einen 2-geschossigen Verbindungsbau gegliedert, welcher eine zusätzliche neue angemessene Eingangssituation bildet.



