Kindertagesstätte Solingen
NEUBAU EINER 4-ZÜGIGEN INKLUSIVEN KINDERTAGESSTÄTTE
Die Kindertagesstätte „Die kleinen Holzwürmer“ liegt in einem gewachsenen Wohnquartier in Solingen Wiefeldick und ist auf einem bislang unbebauten Brachland
entstanden. Im Verbund mit einem betreuten Wohnprojekt für Menschen mit Behinderung als Nachbar, entsteht, getragen durch den unabhängigen Verein Pro Mobil e.V ein inklusives barrierefreies Wohn- und Betreuungsangebot, dass den Stadtteil ideal ergänzt.
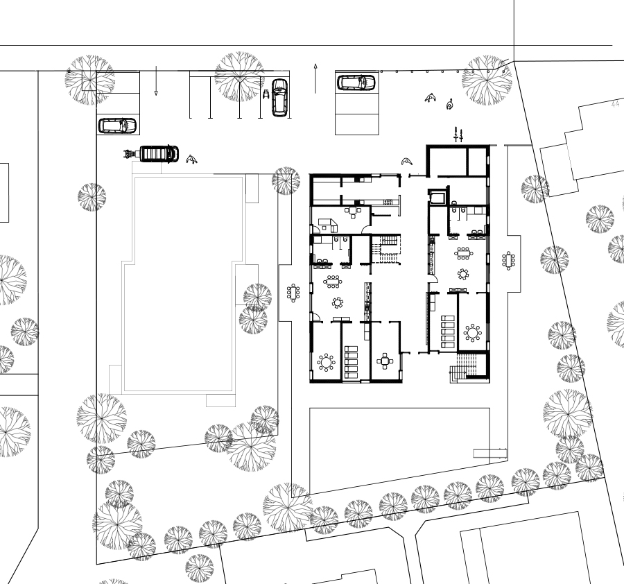
Das vorhandene heterogene Umfeld ist geprägt von solitären Mehrfamilienhäusern und mittelständischen Gewerbestrukturen. Der kompakte 2-geschossige Baukörper wird vom Norden erschlossen und ist über einen öffentlichen Vorplatz mit dem Wohnprojekt verbunden.
Nach Süden hin öffnet sich das Kinderhaus in die grüne Gartenlandschaft und ist mit den vorhandenen autofreien Binnenwegen verbunden. Das auskragende Vordach des Eingangsbereiches unterstreicht den einladenden Anspruch der integrativen Einrichtung, das Pendant auf der Gartenseite mit der Treppe in den Außenbereich bietet Schatten und Spielmöglichkeit bei allen Wetterlagen.
Die 4 Kindergruppen sind über eine zentral angeordnete Spiellandschaft erschlossen.
Die Anbindung an die bewusst großzügig bemessene Verkehrsfläche ist transparent und der offene Übergang erleichtert die spielerische Erkundung des Hause durch die Kinder. Die modulare Grundstruktur des Grundrisses ermöglicht einen systematischen und zugleich abwechslungsreichen Wechsel von Spiel- und Ruheräumen sowie Rückzugsbereichen für das freie Spiel.
Der verglaste Dachreiter über der zentralen Erschließung sichert in allen Spielbereichen Versorgung mit natürliches Tageslicht.
Die gesamte Konstruktion ist als Tragwerk und Ausbau in Holzbauweise ausgeführt.
Hierdurch und eine unterstützende Lüftungsanlage werden die Anforderung an die EnEv übertroffen. Überdies hinaus trägt die nachhaltige Bauweise in Holz dem ökologischen und pädagogischem Anspruch des Trägers Rechnung. Die naturbelassenen Holzoberflächen im Außen- und Innenbereich unterstützen als sinnliche und taktile Erfahrungsräume das inklusive Miteinander von behinderten und nicht behinderten Kindern und Mitarbeitern.
www.pmobil.de/Kita_Solingen
BAUHERR: Pro Mobil e.V., Velbert
ARCHITEKTUR: HEIERMANN ARCHITEKTEN, Köln
TECHNISCHE GEBÄUDEAUSRÜSTUNG: Ing. Büro Deuter, Iserlohn
TRAGWERKSPLANUNG: Imagine Structure, Frankfurt
BAULEITUNG: Krause Architekten, Düsseldorf
AUSFÜHRUNG: Holzbau Brüggemann, Neuenkirchen
Team: Bernadette Heiermann, Severin Heiermann, Alexander Seidner
