Grundschule Garthestraße, Köln
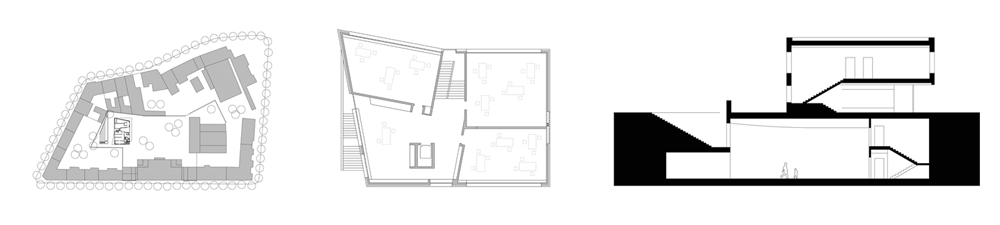
Der 2-geschoßige Neubau der Mensa wird im nord-östlichen Bereich des Schulgrundstückes als Pendant zur gegenüberliegenden alten Turnhalle positioniert. Im Zusammenspiel mit den bestehenden Schulgebäuden entsteht ein u-förmig gefasster Schulhof. Die Turnhalle ist unterhalb der Mensa vollständig unterirdisch angeordnet.
Hofseitig springt das Erdgeschoss zurück, sodass eine überdachte Eingangsfläche für die unterschiedlichen Nutzungen OGTS, Pausen-WCs und Turnhalle entsteht.
Über einen zentralen Eingang erreicht man das Foyer der OGTS und eine großzügige Treppe, die zu den 3 Speiseräumen im Obergeschoss führt. Diese sind um ein Foyer angeordnet, welches Aufenthaltsmöglichkeiten für die wartenden Schüler bietet.
Fertigstellung: 2012
Bauherrin: Stadt Köln, Gebäudewirtschaft
Außenanlagen: Lill+Sparla Landschaftsarchitekten, Köln
Tragwerksplanung: Ing. Büro Hettlich, Köln
Haustechnik: SWG, Stephan Winterscheidt, Siegburg
Bauleitung: Ing. Büro Stein, Köln
Team: Bernadette Heiermann, Severin Heiermann, Eva Stach
